最近刷到好多农村自建房的帖子,要么预算超到“建完吃半年泡面”,要么装得像“婚礼现场”花里胡哨,直到看到这个房子,突然反应过来——这才是普通人要的“过日子的房子”啊!
你想,农村人建房图啥?
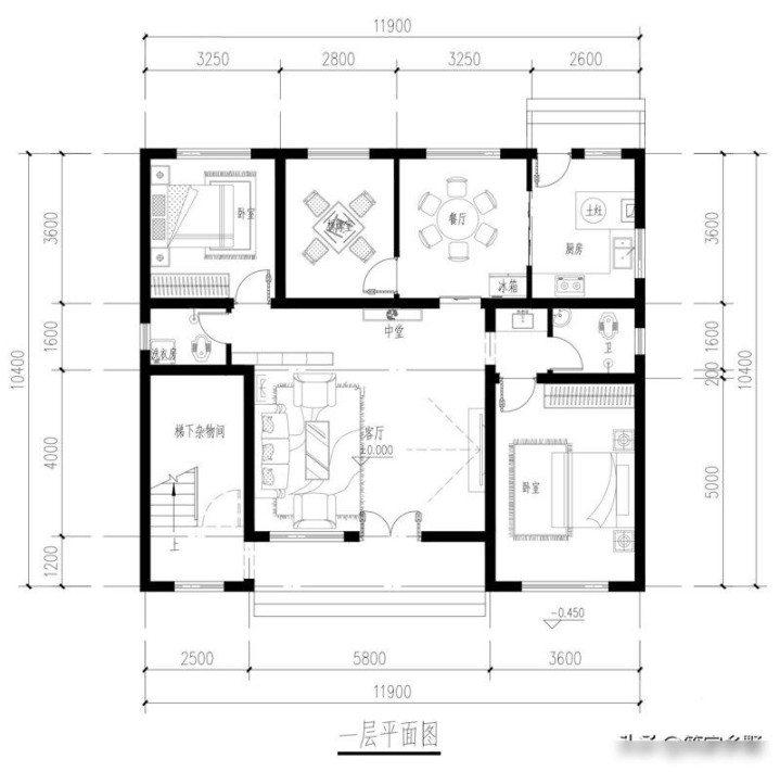
不就是“一家人住得下,亲戚来能热闹,平时做饭洗衣不费劲”吗?一层把卧室、棋牌、厨房、洗衣间全安排明白了,还不是乱堆:棋牌区放门口附近,亲戚来打牌不会吵到里屋睡觉的人;厨房和餐厅连在一起,端个大锅菜不用跑十米,农村做饭都是“大灶+电饭锅”,这种“动线短”的设计,比城里“厨房在北阳台、餐厅在南客厅”的布局实用一百倍;最贴心的是梯下储物,谁家里没几把锄头、几坛腌菜、孩子的旧自行车?把这些“见不得人但必须有”的东西藏这儿,客厅就能清清爽爽摆沙发,这不比“为了好看把玄关做成玻璃柜”强?
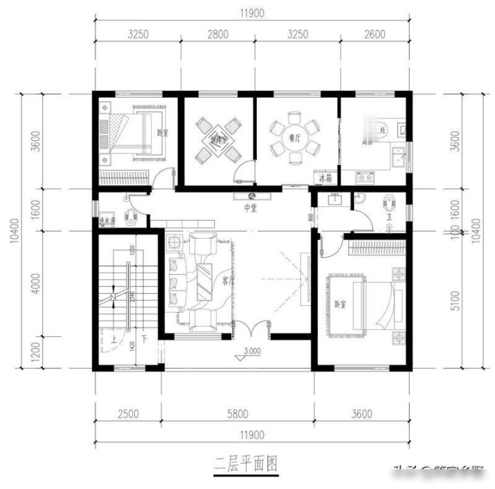
二层更懂“私密”——不是把四个卧室挤成一排,每个房间都留了独立小储物,公共区还能摆个茶桌。周末上午阳光照进来,一家人围在这儿剥橘子、聊孩子的学习,比城里公寓“客厅只能放沙发看手机”舒服多了吧?楼梯设计得缓,老人上下楼不用扶着扶手喘,这种“把细节藏在看不见的地方”的贴心,才是好房子的魂啊!
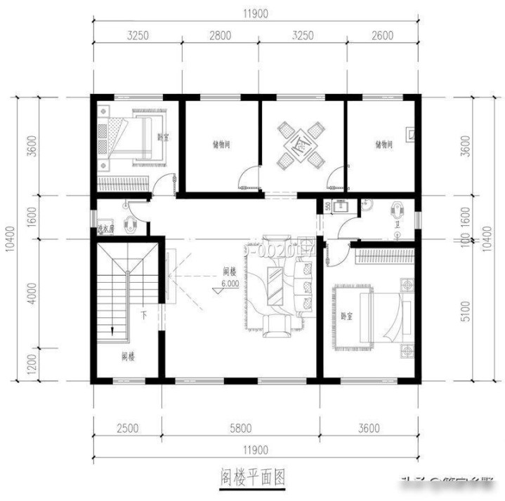
最绝的是阁楼!
以前农村阁楼要么堆破烂,要么漏雨没法用,这次直接改成卧室和起居区——等于多了半层!
比如刚工作的孩子,阁楼当他的“独立小天地”,摆书桌放衣柜,关上门能安静加班;或者给老人当“阳光房”,摆藤椅种多肉,下午晒晒太阳看报纸,这不比“买一楼带院子贵十万”划算?
再看外观——白墙灰瓦不是“仿古建筑的假清高”,门楣用简单木雕,墙面是水泥压光(耐脏还便宜),搭配后面的山景,拍张照发朋友圈,朋友都问“这是哪个民宿?”,但其实是自己家!关键价格——51万建335㎡,每平米才1500块,城里连个卫生间都买不到,这儿能建出“有天有地有院子”的房子,难道不是普通人的终极梦想?
你们说,现在农村自建房最缺的是什么?
是“站在用户角度想问题”啊!不是堆贵瓷砖,不是装没用的水晶灯,而是“我要打麻将、要放农具、要孩子写作业、要老人晒太阳”——这些需求全满足了,不比“网红款自建房”值?
对了,我还有个问题:如果是你,会把阁楼改成卧室还是健身房?
或者觉得一层棋牌区该加个隔断吗?
毕竟打牌声音大,会不会吵到睡觉的人?
反正我觉得,这房子不是“完美的”,但绝对是“适合普通人的”——它没追求“让别人觉得好看”,而是“让自己住得舒服”。
你们说,这个51万,花得值吗?
低息配资平台,老牌股票配资平台,配资平台靠谱提示:文章来自网络,不代表本站观点。